Watermark at Buzzard Point

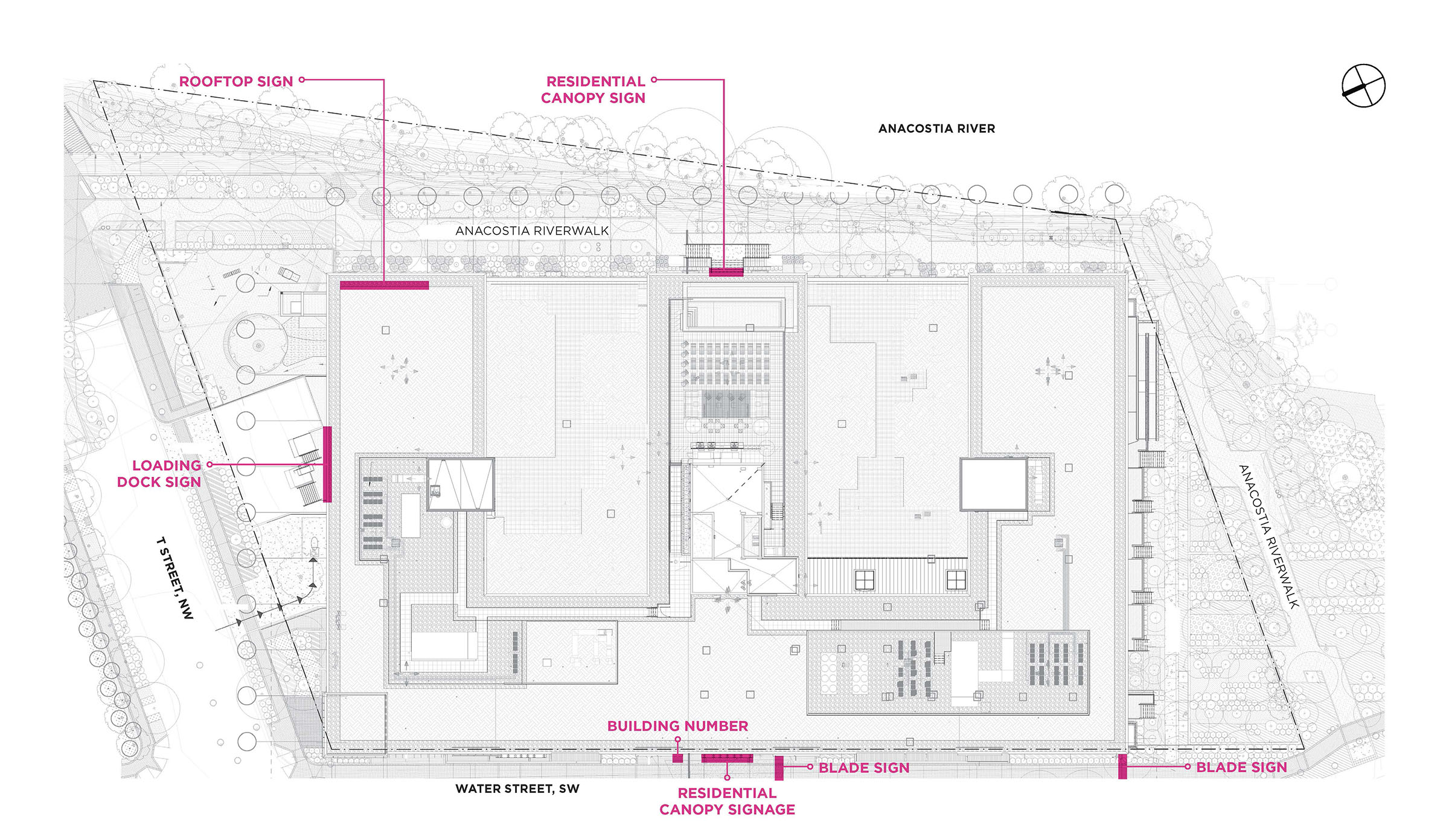
Wayfinding System + Signage Documentation (Exterior & Interior)

Project detail 1
Project detail 2
Project detail 3
Project detail 4
Project detail 5
Project detail 5
Project detail 5
Project detail 5
Project detail 5